VERKAUFT!Geräumiges Wohnhaus mit großem Grundstück

Objekt-ID: 12217905 zurück zur Übersicht

Beschreibung

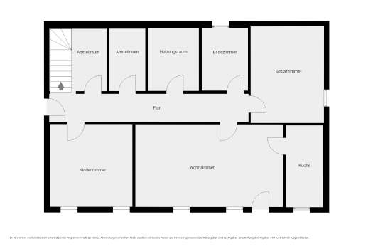
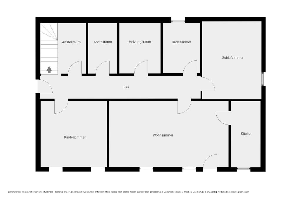
Das geräumige Wohnhaus wurde 1971 auf einem ruhig gelegenen, großzügigen Grundstück in Oberfüllbach erbaut. Die massiv errichtete Immobilie ist mit 7 Zimmern und 2 Bädern für eine große Familie gut ausgestattet. Die teils überdachte Terrasse mit herrlichem Blick eignet sich ideal sowohl für Entspannung, als auch für gesellige Stunden im Freien. Das Souterrain kann aufgrund der Aufteilung auch als Einliegerwohnung genutzt werden. Modernisierungsmaßnahmen sind erforderlich. Geheizt wird mittels einer neuen Öl-Zentralheizung aus dem Jahr 2021- Energiebedarfsausweis 231,2kWh/(m²a) - Effizienzklasse G. Zum Anwesen gehören 2 Garagen. Irrtum und Zwischenverkauf vorbehalten. Alle Angaben stammen vom Verkäufer.-VERKAUFT!

Objektdaten

Objekt-ID 12217905
Objektart Einfamilienhaus
Ort D-96237
Ebersdorf
Kauf­preis 185.000 €
Käufer-Prov. 3,57 %
Baujahr 1971
Gesamt­fläche 183 m2
Wohn­fläche 183 m2
Grund­stücks­fläche 1.001 m2
Zimmer 7
Garagen 2
Objekt anfragen