RESERVIERT! Gehobenes Wohnhaus beim Goldbergsee !

Objekt-ID: 12384517 zurück zur Übersicht

Beschreibung

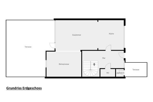
Dieses besondere Reihenhaus aus dem Jahr 1972 befindet sich in einer äußerst ruhigen und begehrten Wohnlage, nur wenige Gehminuten vom beliebten Goldbergsee entfernt. Ein Paradies für Spaziergänger und Naturliebhaber. Mit 4,5 Zimmern und ca. 132 m² Wohnfläche ist das Haus ideal für bis zu 4 Personen bzw. Homeoffice. Hochwertige Außenanlagen mit div. Natursteinarbeiten, sowie zwei liebevoll gestalteten Terrassen inkl. schattigem Sitzbereich unter eigenen Weinreben wurden realisiert. Im Inneren überzeugt das Haus durch einen großzügigen, offen gestalteten Wohn- und Essbereich mit moderner Küche (im Preis enthalten). Geheizt wird mit einer sparsamen Gas-Zentralheizung (Bj. 2015 - Energiebedarfsausweis 158,8 kWh/(m²*a), Effizienzklasse E). Ein großer Keller, sowie eine Garage gehören dazu. Irrtum und Zwischenverkauf vorbehalten. Alle Angaben stammen vom Eigentümer. RESERVIERT!

Objektdaten

Objekt-ID 12384517
Objektart Reihenhaus
Ort D-96450
Coburg
Käufer-Prov. 2,38 %
Baujahr 1972
Gesamt­fläche 132 m2
Wohn­fläche 132 m2
Grund­stücks­fläche 255 m2
Zimmer 4
Garagen 1
Objekt anfragen