VERKAUFT! Tolles Wohnhaus mit ELW und großem Grundstück
Beschreibung
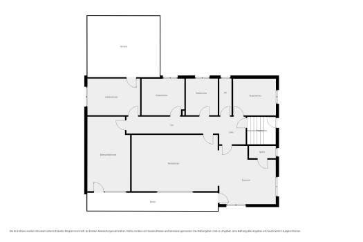
Dieses großzügige Wohnhaus (Bj.`75) befindet sich in einem idyllischen und ruhig gelegenen Stadtteil von Rödental. Es bietet, dank seines weitläufigen Grundstücks und des Obstbaumbestands, viel Freiraum für Natur- und Gartenliebhaber. Die Immobilie eignet sich ideal als Mehrgenerationenhaus oder als Kapitalanlage. 2 geräumige Wohneinheiten mit komfortabler Raumaufteilung erstrecken sich jeweils über eine Etage. Das EG verfügt über 3 Schlafzimmer, Wohnzimmer mit einer offenen Essküche sowie einem Bad. Ein herrlicher Balkon mit Weitblick und die große Terrasse mit dem Blick auf das idyllische Grundstück lassen keine Wünsche offen. Das 2010 renovierte Souterrain verfügt über einen separaten, ebenerdigen Eingang. Hier befinden sich ein Schlafzimmer, Wohnbereich mit Kamin (Bj. 2009), Küche, sowie ein Bad . Zum herrlichen Anwesen gehören 2 Garagen direkt vor dem Haus. Vorhanden ist eine Gas-Brennwerttherme (Bj. 2003), welche aktuell defekt ist. Energiebedarfsausweis 170,0 kWh/(m²*a), Effizienzklasse F. Irrtum und Zwischenverkauf vorbehalten. Alle Angaben stammen vom Eigentümer.!VERKAUFT!
Objektdaten
| Objekt-ID | 12245819 |
| Objektart | Einfamilienhaus |
| Ort | D-96472 Rödental |
| Käufer-Prov. | 3,57 % |
| Baujahr | 1975 |
| Gesamtfläche | 275 m2 |
| Wohnfläche | 275 m2 |
| Grundstücksfläche | 2.229 m2 |
| Zimmer | 8 |
| Garagen | 2 |
| Stellplätze | 1 |
| frei ab | sofort |