VERKAUFT! Geräumiges Zweifamilienhaus in Scheuerfeld
Beschreibung
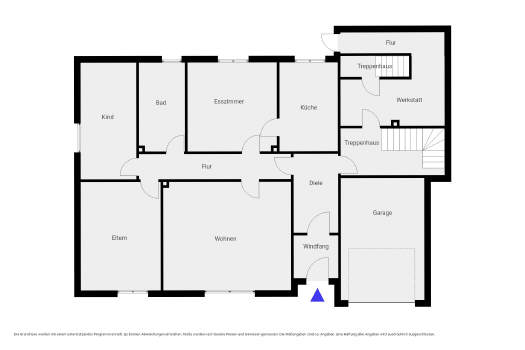
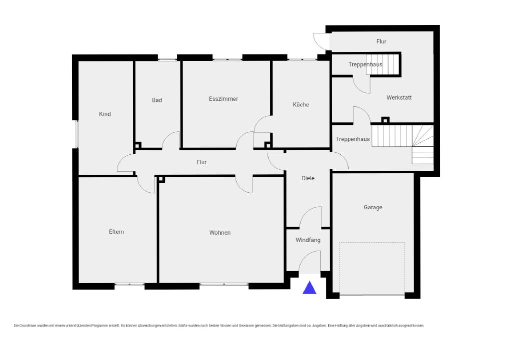
Dieses charmante Zweifamilienhaus aus dem Jahr 1973 im familienfreundlichen Coburg-Scheuerfeld vereint durchdachte Raumaufteilung und attraktive Nutzungsmöglichkeiten für Eigennutzer und Kapitalanleger. Die Immobilie bietet einige Highlights, darunter ein 1993 ausgebautes Obergeschoss mit abgenommenen Kaminofen, das direkt bezogen oder vermietet werden kann. Das ebenerdige Erdgeschoss kann durch ein paar Renovierungsarbeiten zum attraktiven Wohnraum für Jung und Alt werden. Geheizt wird mittels Strom-Mix Einzelöfen Bj. ca. 1993 und zwei Kaminöfen (Bj. 1996 u. 2004) - Energiebedarfsausweis 264,0kWh/(m²a)-Effizienzklasse H. Ein aktueller Feuerstättenbescheid liegt vor. Nutzen Sie das Potenzial des bestehenden Wohnraums und die Ausbaureserven im DG, um Ihre Wohnträume zu realisieren oder Ihre Rendite zu steigern. Einkaufsmöglichkeiten, Schulen und öffentliche Verkehrsanbindungen sind schnell erreichbar. Kontaktieren Sie uns für weitere Informationen oder eine Besichtigung. Dieses Objekt überzeugt durch seine vielseitigen Möglichkeiten und wartet darauf, von Ihnen entdeckt zu werden! Eine Garage und ein Stellplatz sind Teil des Angebotes. Irrtum und Zwischenverkauf vorbehalten. Alle Angaben stammen vom Eigentümer.-VERKAUFT!
Objektdaten
| Objekt-ID | 12261418 |
| Objektart | Einfamilienhaus |
| Ort | D-96450 Coburg |
| Käufer-Prov. | 3,57 % |
| Baujahr | 1973 |
| Gesamtfläche | 201 m2 |
| Wohnfläche | 201 m2 |
| Grundstücksfläche | 618 m2 |
| Zimmer | 7 |
| Garagen | 1 |
| Stellplätze | 1 |
| frei ab | sofort |