VERKAUFT! Gepflegtes Reihenhaus in guter Lage!

Objekt-ID: 12266599 zurück zur Übersicht

Beschreibung

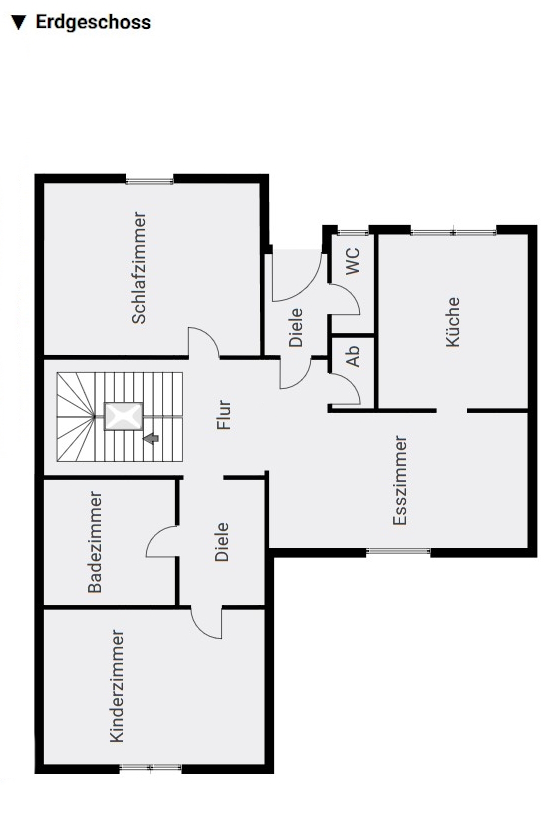
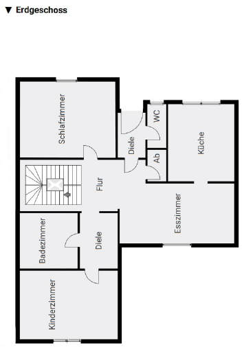
Dieses interessante Reihenmittelhaus wurde 1969 im attraktiven Wohngebiet "Demo - Heimatring" erbaut. Neben dem großen Essbereich mit Panoramablick und angrenzender Küche bietet es im Erdgeschoss noch ein Schlafzimmer, ein Kinderzimmer und ein Bad. Somit ist es für ein älteres Ehepaar oder eine junge Familie bestens geeignet. Im Untergeschoss befindet sich neben einem zweiten Bad auch ein weiteres Kinderzimmer, sowie ein großes Wohnzimmer mit Ausgang zur Terrasse/dem schicken Garten. Geheizt wird mit einer Gas-Zentralheizung (Bj. 2003), Energiebedarfsausweis 212,7 kWh/(m²*a), Effizienzklasse G. Kellerräume sind ebenfalls vorhanden. Irrtum und Zwischenverkauf vorbehalten. Alle Angeben stammen vom Eigentümer.-VERKAUFT!

Objektdaten

Objekt-ID 12266599
Objektart Reihenhaus
Ort D-96450
Coburg
Käufer-Prov. 2,86 %
Baujahr 1969
Gesamt­fläche 125 m2
Wohn­fläche 125 m2
Grund­stücks­fläche 278 m2
Zimmer 5
Objekt anfragen