VERKAUFT! Architektenhaus in herrlicher Lage von Scheuerfeld
Beschreibung
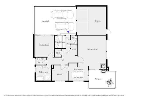
Dieses hervorragend geschnittene Architektenhaus wurde 1979 im Coburger STT Scheuerfeld gebaut. Das Objekt befindet sich in einer sehr ruhigen Wohnlage mit einem großen, idyllischen Grundstück. Mit einer offenen und modernen Raumaufteilung bietet das Haus Platz für eine Familie, die Ihren Traum vom Eigenheim realisieren möchte. Die Terrasse mit Außenkamin und den Blick in den uneinsehbaren Garten lädt zu gemütlichen Stunden ein. Verteilt auf zwei Ebenen wurden hochwertige Fenster, Türen und Treppen verbaut. Geheizt wird mittels einer Gas-Zentralheizung aus dem Jahr 1994. Der Brenner wurde 2014 erneuert. Energiebedarfsausweis 184,3kWh/(m²a)-Effizienzklasse F. Der Kamin im Wohnzimmer ist aktuell stillgelegt, kann aber durch Einzelmaßnahmen wieder in Gang gesetzt werden. Eine große Doppelgarage mit elektrischem Garagentor runden das Angebot ab. Irrtum und Zwischenverkauf vorbehalten. Alle Angaben stammen vom Eigentümer.-VERKAUFT!
Objektdaten
| Objekt-ID | 12306547 |
| Objektart | Einfamilienhaus |
| Ort | D-96450 Coburg |
| Käufer-Prov. | 3,57 % |
| Baujahr | 1979 |
| Gesamtfläche | 147 m2 |
| Wohnfläche | 147 m2 |
| Grundstücksfläche | 924 m2 |
| Zimmer | 6 |
| Garagen | 2 |
| Stellplätze | 1 |
| frei ab | sofort |