RESERVIERT! Super Gelegenheit im Stadtbusbereich von Coburg
Objekt-ID: 12313594 zurück zur Übersicht
reserviert
Beschreibung
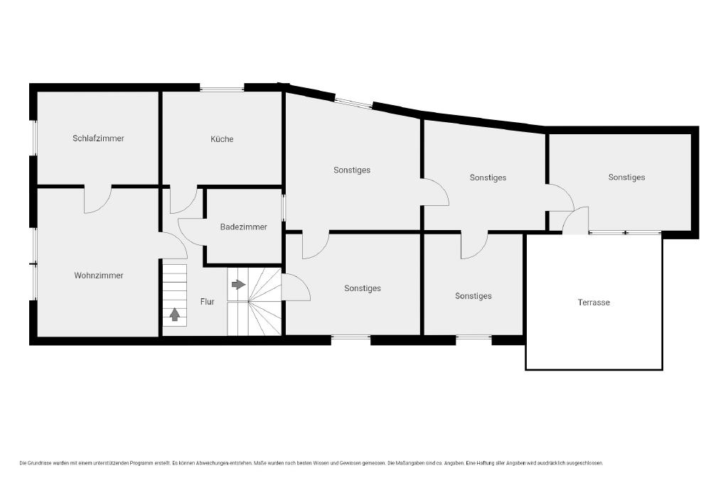
Dieses sehr geräumige Wohnhaus wurde ca. 1900 in Coburg-Bertelsdorf errichtet. Weitere Anbauten erfolgten in den 60er Jahren. Insgesamt bietet das Haus 8 Zimmer, Küche und Bad. Geheizt werden die Räume mittels einer neuwertigen Gas-Zentralheizung aus dem Jahr 2021-Energiebedarfsausweis 283,4 kWh/(m²a) - Effizienzklasse H. Das Wohnhaus ist teilunterkellert und eignet sich auf Grund der Aufteilung evt. auch für 2 Familien. Renovierungsmaßnahmen sind erforderlich. Zum Anwesen gehören eine Garage und ein ruhiger Garten hinter dem Haus. Irrtum und Zwischenverkauf vorbehalten. Alle Angaben stammen vom Verkäufer -RESERVIERT!
Objektdaten
| Objekt-ID | 12313594 |
| Objektart | Einfamilienhaus |
| Ort | D-96450 Coburg |
| Käufer-Prov. | 3,57 % |
| Baujahr | 1900 |
| Gesamtfläche | 160 m2 |
| Wohnfläche | 160 m2 |
| Grundstücksfläche | 740 m2 |
| Zimmer | 8 |
| Garagen | 1 |