Großräumiges Haus mit vielen Nutzungsmöglichkeiten in Bad Rodach

Objekt-ID: 12230639 zurück zur Übersicht

Beschreibung

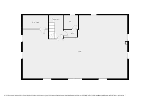
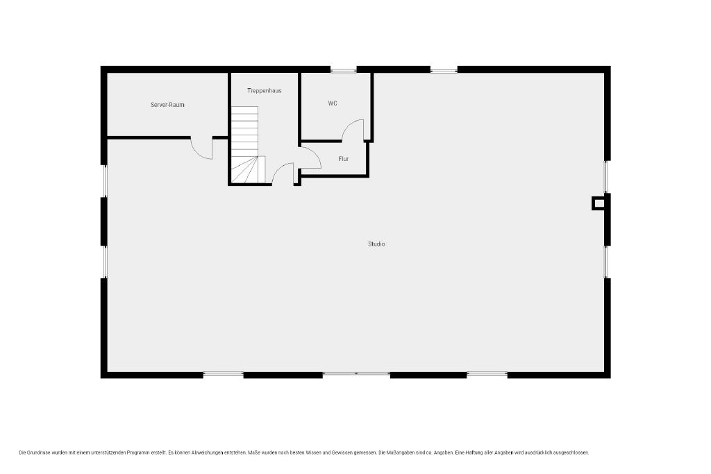
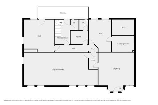
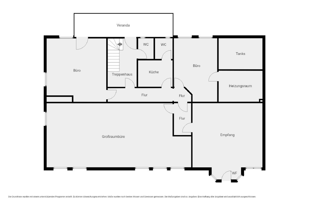
Entdecken Sie die einzigartige Gelegenheit, ein ehemaliges Bankgebäude aus dem Jahr 1995 in Bad Rodach zu erwerben. Dieses Gebäude bietet aufgrund seiner beeindruckenden Fläche und flexiblen Nutzungsmöglichkeiten eine ideale Investitionsmöglichkeit für vielfältige Ideen. Mit wenig Aufwand kann das Gebäude als Eigenheim bewohnt werden oder die Möglichkeit genutzt werden, durch die schöne Raumaufteilung, mehrere Wohnungen zu generieren. Neben den ehemaligen Büroräumen im EG befindet sich im OG ein riesiges, offenes Studio das zum Wohnen einlädt. Geheizt wird das Haus mittels einer Öl-ZH aus dem Jahr 1995. Energiebedarfsausweis 147,8 kWh/(m²a) - Effizienzklasse E. Der Kaufpreis beträgt 210.000 zzgl. MWSt.. Zum Anwesen gehören drei Stellplätze und ein kleiner Gartenbereich. Irrtum und Zwischenverkauf vorbehalten. Alle Angaben stammen vom Verkäufer.

Objektdaten

Objekt-ID 12230639
Objektart Einfamilienhaus
Ort D-96476
Bad Rodach
Kauf­preis 249.900 €
Käufer-Prov. 3,57 %
Baujahr 1995
Gesamt­fläche 328 m2
Wohn­fläche 328 m2
Grund­stücks­fläche 599 m2
Stell­plätze 3
frei ab sofort
Objekt anfragen