Effizienzhaus mit Keller im Neubaugebiet!

Objekt-ID: 12396854 zurück zur Übersicht

Beschreibung

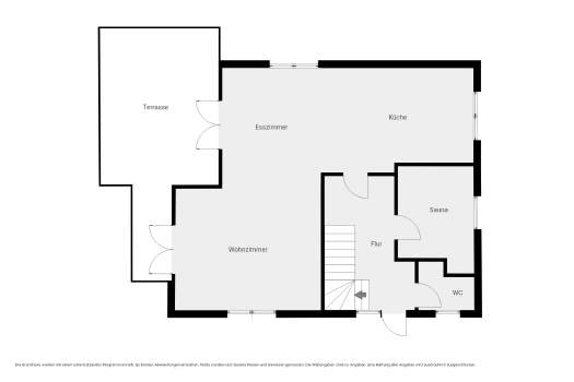
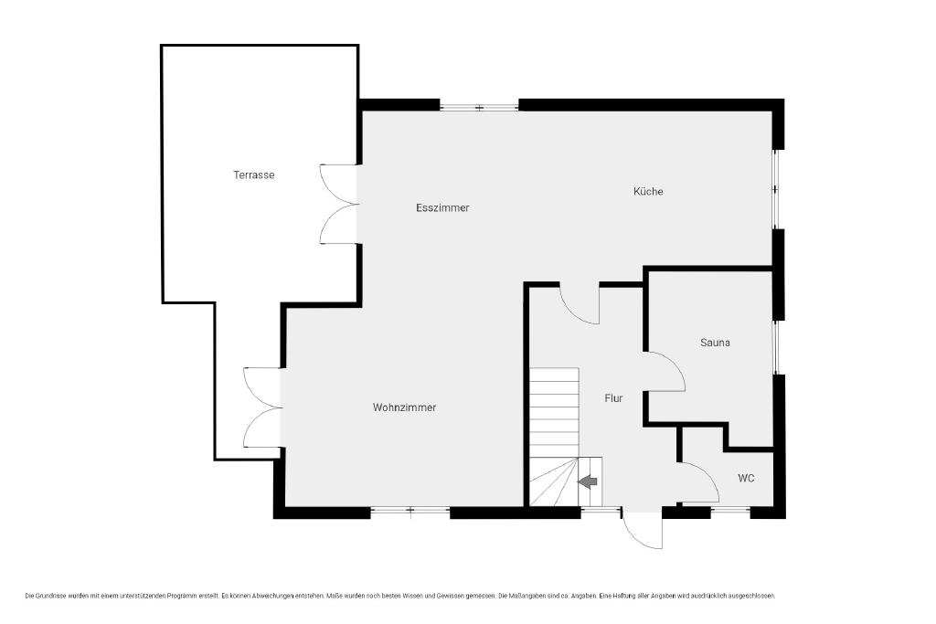
Dieses gepflegte Einfamilienhaus, erbaut 2013 im attraktiven Neubaugebiet von Marktgraitz, zeichnet sich durch hohen Wohnkomfort in praktischer Lage aus. In wenigen Minuten erreichen Sie Sonnefeld, Lichtenfels oder Kronach - ideal für Familien oder Pendler. Das Herzstück des Hauses bildet der offene Wohn- und Essbereich (mit Zugang zur großen Terrasse) sowie die angrenzende, großzügige Küche. Entspannung finden Sie direkt im Erdgeschoss in der integrierten Sauna. Im ersten Obergeschoss erwarten Sie drei helle Zimmer - zwei davon mit Zugang zur Loggia - sowie ein geräumiges Badezimmer. Der Keller bietet maßgefertigte Möbel vom Schreiner, perfekt für Ihre Wintergarderobe oder zusätzlichen Stauraum. Für zeitgemäßen Komfort sorgt eine effiziente Wärmepumpe (Strom, Energiebedarfsausweis: 32,10 kWh/(m²*a), Effizienzklasse A). Zwei Garagen bieten Platz für Ihre Fahrzeuge. Das Haus ist kurzfristig bezugsfrei und die ideale Alternative zum Neubau! Irrtum und Zwischenverkauf vorbehalten. Alle Angaben stammen vom Eigentümer.

Objektdaten

Objekt-ID 12396854
Objektart Einfamilienhaus
Ort D-96257
Marktgraitz
Kauf­preis 429.000 €
Käufer-Prov. 3,57 %
Baujahr 2013
Gesamt­fläche 150 m2
Wohn­fläche 150 m2
Grund­stücks­fläche 760 m2
Zimmer 5
Garagen 2
Objekt anfragen