Attraktives Wohnhaus mit tollem Wohnambiente

Objekt-ID: 12396327 zurück zur Übersicht

Beschreibung

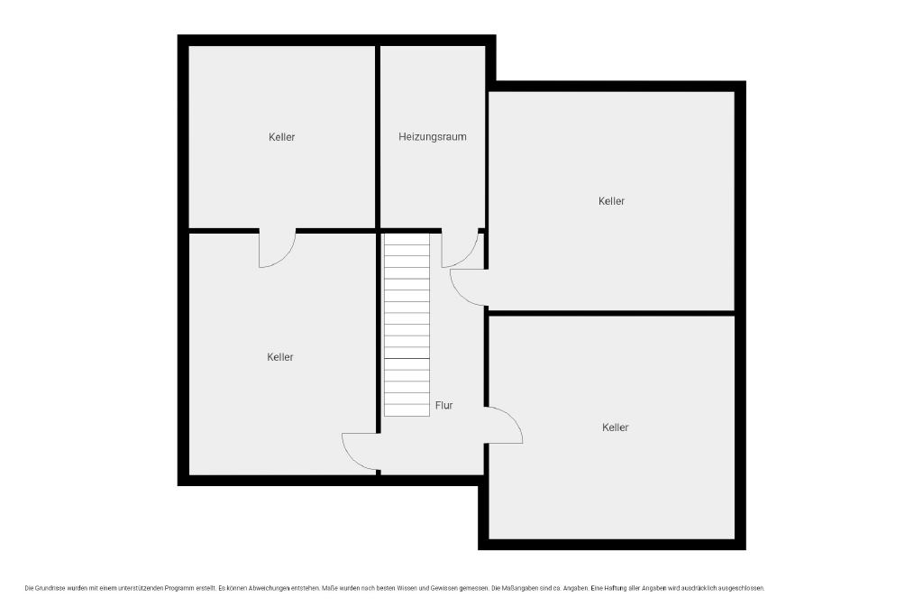
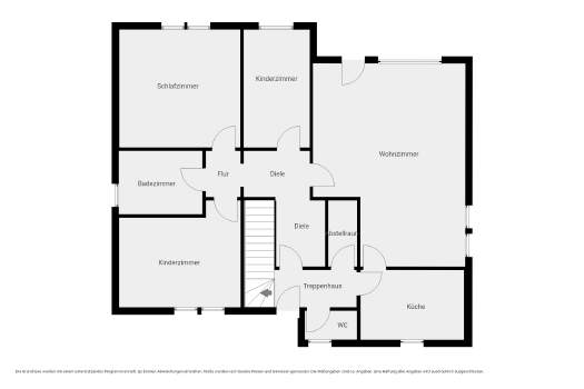
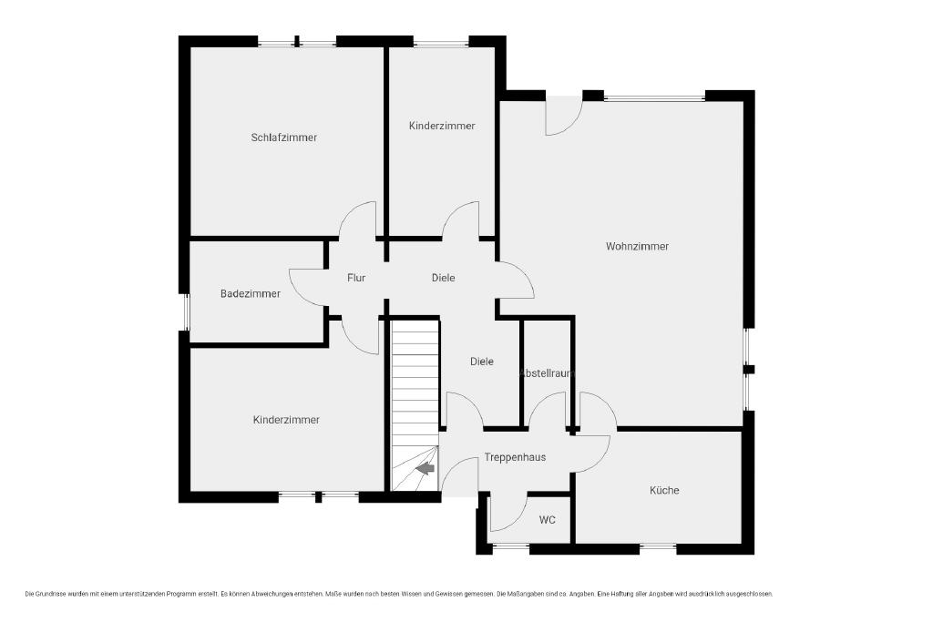
Einmalige Gelegenheit! Das gepflegte Wohnhaus wurde 1980 in einer ruhigen Wohnlage von Untermerzbach gebaut. Auf Grund der genialen Aufteilung eignet sich das Haus auch für 2 Parteien. Insgesamt stehen 6 Zimmer, 2 Küchen, 2 Bäder, AR, sowie ein Gäste-WC zur Verfügung. Im Erdgeschoss wurden die Küche, das Bad, sowie das Gäste-WC modernisiert. Vom Wohnzimmer gelangt man auf die sonnige Terrasse und kann von hier den Blick in den schönen Garten genießen. Die vollunterkellerte Immobilie wird mittels einer Öl-Zentralheizung aus dem Jahr1980 beheizt - Energieverbrauchsausweis 98,9kWh/(m²a) - Effizienzklasse C. Zum Anwesen gehören 2 Garagen. Irrtum und Zwischenverkauf vorbehalten. Alle Angaben stammen vom Eigentümer.

Objektdaten

Objekt-ID 12396327
Objektart Einfamilienhaus
Ort D-96190
Untermerzbach
Kauf­preis 269.000 €
Käufer-Prov. 3,57 %
Baujahr 1980
Gesamt­fläche 173 m2
Wohn­fläche 173 m2
Grund­stücks­fläche 764 m2
Zimmer 6
Garagen 2
Objekt anfragen